«Житомирський Дворик» Дуплекс 110 кв.м. ділянка 2.5 сотки м.Ірпінь

 

Місцезнаходження: м. Ірпінь
Матеріал будівництва: Газоблок
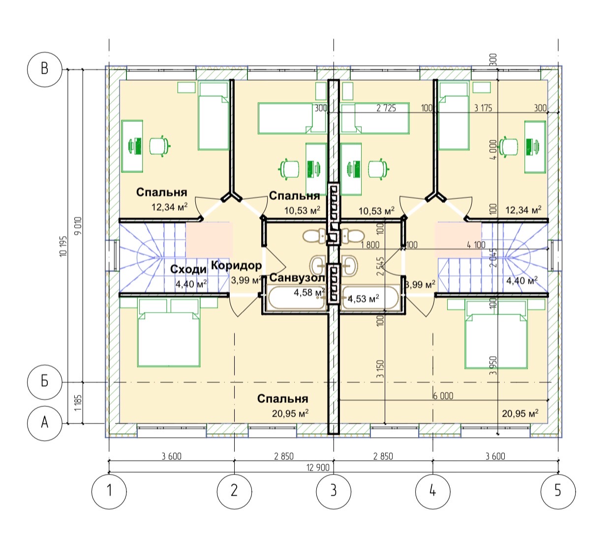
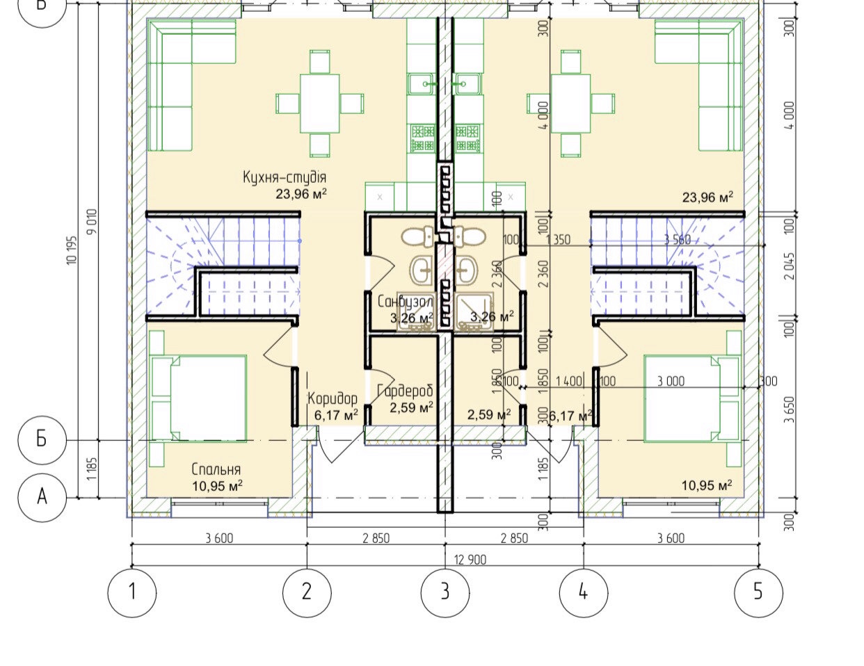
Площа дуплекса: 110 м2
Площа ділянки: 2.5 сотки
К-сть кімнат: 4
К-сть поверхів: 2
Коммунікації: світло 16 кВт, септик, скважина
Вартість: 76 000у.е.